盛岡市の賃貸物件|株式会社森の不動産 > (賃貸)地域から探す > 紫波郡矢巾町 > サザンウィング > C
お手入れしやすくなっているので綺麗な状態を保ちやすい洗面化粧台が付いています。安定の新築物件で新たな生活をスタートさせてみませんか。建物面積79.49㎡もあり使いやすい。クローゼット付きの物件です。お気に入りの賃貸戸建てを探すなら、森の不動産にお任せください。お問い合せは019-606-0555、もしくはmori-no@f8.dion.ne.jpへご連絡をお願い致します。

| 所在地 | 岩手県紫波郡矢巾町大字南矢幅第8地割104-2 | ||
|---|---|---|---|
| 交通 | |||
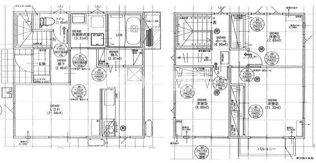
| 間取り/詳細 | 3LDK | 面積/バルコニー面積 | 79.49㎡/- |
| 賃料 | 13万円 | 管理費・共益費 | - |
| 敷金/礼金/保証金 | 2ヶ月/0ヶ月/0ヶ月 | 償却/敷引 | -/- |
| 更新料/更新事務手数料 | -/1.1万円 | 敷金積み増し | - |
| 権利金/雑費 | -/- | 駐車場/月額料金 | 有(2台)/- |
| 保険加入/料金 | 有/- | 保険名/保険期間 | -/- |
| 保証人代行義務 | - | 保証会社 | - |
| 保証会社詳細 | - | 向き | - |
| 築年月(築年数) | 2025年 7月 (新築) | 契約期間 | 2年 |
| 種別/構造 | 一戸建て/木造 | 部屋/所在階/階建 | C/ -/ 2階建 |
| 総戸数 | - | 現況/入居可能日 | 完成済み/即時 |
| 特優賃 | - | 取引態様/賃貸区分 | 専属専任媒介/一般 |
| 物件番号 | 96197827 | 取引条件の有効期限 | 2026年02月16日 |
| 設備条件 |
|
||
| 備考 | 「サザンウィングⅢ」:紫波郡矢巾町エリアの新居にピッタリ。忙しい朝にも嬉しい、洗面所が独立している物件。駐車スペースが只今2台分空きがございます。森の不動産は紫波郡矢巾町エリアにある賃貸住宅情報を取り扱っています。お探しの際は、ぜひ019-606-0555又はmori-no@f8.dion.ne.jpにてご連絡下さい。 | ||
| 取扱会社 |
|
||
| QRコード |
このQRコードを読み取ることで、スマホでも物件情報を確認できます。 |
||
※地図上に表示される物件の位置は付近住所に所在することを表すものであり、実際の物件所在地とは異なる場合がございます。
サザンウィングに関するこだわり条件から探す
紫波郡矢巾町にある駅から探す
サザンウィング周辺の駅から探す