盛岡市の賃貸物件|株式会社森の不動産 > (賃貸)地域から探す > 盛岡市 > LIFE BOX MOTOMIYA > F
化粧品やスタイリング剤などをまとめて出し入れして、サッと身支度を整えられる洗面化粧台を採用しています☆インターホン越しに来訪者を確認できるので、トラブルを回避しやすくなります☆盛岡市への引越しを決めたが、住まいが決まらないとお悩みの方、森の不動産にお任せください☆お客様のご要望に合わせた物件をご紹介します☆ご連絡はmori-no@f8.dion.ne.jpへどうぞ(^^)

| 所在地 | 岩手県盛岡市本宮6丁目4 | ||
|---|---|---|---|
| 交通 | |||
| 間取り/詳細 |
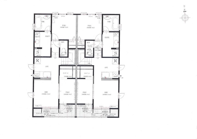
2LDK+1S(納戸) LDK 11.5帖/洋室 7.0帖/洋室 4.5帖/S 3.0帖 |
面積/バルコニー面積 | 94.39㎡/- |
| 賃料 | 12.8万円 | 管理費・共益費 | - |
| 敷金/礼金/保証金 | 1ヶ月/-/- | 償却/敷引 | -/- |
| 更新料 | - | 敷金積み増し | - |
| 権利金/雑費 | -/- | 駐車場/月額料金 | 空有/ インナーガレージ1台無料2台目5,000円 |
| 保険加入/料金 | 有/20,000円 | 保険名/保険期間 | 家財総合保険/2年 |
| 保証人代行義務 | - | 保証会社 | - |
| 保証会社詳細 | - | 向き | - |
| 築年月(築年数) | 2019年 7月 (築6年) | 契約期間 | - |
| 種別/構造 | アパート/木造 | 部屋/所在階/階建 | F/ 2階/ 2階建 |
| 総戸数 | - | 現況/入居可能日 | 空家/即時 |
| 特優賃 | - | 取引態様/賃貸区分 | 専属専任媒介/一般 |
| 物件番号 | 72317451 | 取引条件の有効期限 | 2026年06月03日 |
| 設備条件 |
|
||
| 備考 | 収納はウォークインクロゼット・シューズボックスなど豊富なので、衣類や履き物の整理がしやすく便利です!室内設備は浴室乾燥機・洗面化粧台など大変充実!訪問者をカメラで確認できるTVインターホン設置済み!高速回線を繋げています、通信が速いのでストレスを感じない!新たな住まい探しを始める方、森の不動産からお探しになりませんか!スタッフ一同サポートして参ります(*´ω`*) | ||
| 設備(その他) | 屋根有駐車場,2F以上,ガス給湯,3点給湯,ビルトインガレージ,専用メーター,インナーガレージで悪天候でも傘いらず!!ハイグレード設備充実! | ||
| 取扱会社 |
|
||
| QRコード |
このQRコードを読み取ることで、スマホでも物件情報を確認できます。 |
||
※地図上に表示される物件の位置は付近住所に所在することを表すものであり、実際の物件所在地とは異なる場合がございます。
盛岡市の町名から探す